Unsere Eilenriedehalle ist die Größte der vier multifunktionalen Veranstaltungshallen im Hannover Congress Centrum. Sie umfasst mit den Teilen A und B insgesamt rund 4.600 m² und bietet unzählige Möglichkeiten für jedes Veranstaltungsformat. Egal ob Kongress, Messe, Incentive, Konzert, Parteitag, Roadshow, Kick-Off oder große Firmenfeier. Die Eilenriedehalle besticht durch die Vielzahl Ihrer Verwendungsmöglichkeiten.
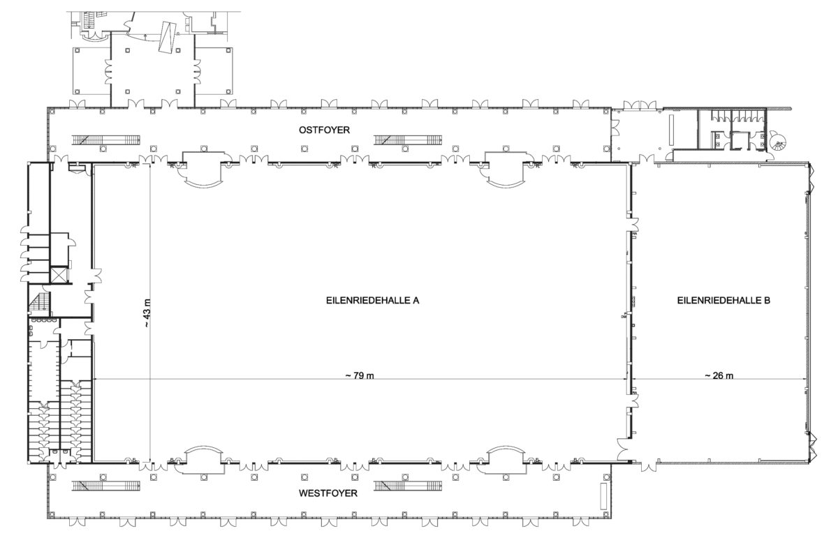
Im großen Hallenteil A finden auf einer Veranstaltungsfläche von 79 m x 43,5 m mit 3.467 m² bis zu 4.000 Personen Platz. Der benachbarte Hallenteil B bietet mit einer Fläche von 1.100 m² mehr als ausreichend Platz für Begleitausstellungen, Catering, ein zusätzliches Plenum oder ein riesiges Backoffice und kann auch unabhängig vom Hallenteil A genutzt werden. Zwei lichtdurchflutete Glasfoyers mit jeweils 640 m² Fläche an den Längsseiten der Halle verbinden die beiden Hallenteile und laden auf zwei Ebenen zum Verweilen ein.
Die Lage in direkter Nähe zu unseren Parkhäusern mit 900 Parkplätzen und der nahe Eingang über den Eingangsbereich „Windfang“ sorgen dafür, dass Sie die Halle in weniger als fünf Minuten von unseren Parkhäusern aus erreichen. Haltestellen für Bus und Bahn des öffentlichen Nahverkehrs liegen 350 m vom Halleneingang entfernt und sind für Veranstaltungsbesucher gut zu erreichen.
Für die An- und Ablieferung zum Veranstaltungsbereich in der Eilenriedehalle steht im hinteren Hallenbereich ein großzügiger Anlieferungsbereich mit direktem Zugang zur Halle zur Verfügung. Große Rolltore eröffnen hier die Möglichkeit, Kraftfahrzeuge, große Exponate und nicht zuletzt Veranstaltungstechnik in die Halle einzubringen.
Wie alle Bereiche des Hannover Congress Centrum ist die Eilenriedehalle ebenerdig zu erreichen und verfügt über Sanitäranlagen für eingeschränkte Gäste.
Plenum Eilenriedehalle –Kongress, Versammlung, Tagung in der Eilenriedehalle
Klassische Tagungen, Konferenzen und Hauptversammlungen erhalten in unserer Eilenriedehalle den passenden Rahmen. Auf 3.476 m² Veranstaltungsfläche finden 1.930 Personen in parlamentarischer Bestuhlung und bis zu 4.034 Personen in Stuhlreihen Platz. Auf Wunsch kann die Veranstaltungsfläche mit einem Vorhang in verschiedene Bereiche unterteilt werden und so neben dem Plenum beispielsweise noch eine Cateringfläche für Kaffeepausen und Lunchbuffet geschaffen werden.
Moderne Veranstaltungstechnik ist elementar für die erfolgreiche Ausrichtung einer Tagung. Das Hannover Congress Centrum bietet Ihnen sowohl interessante Pauschalangebote für Ihren Tagungsbereich als auch individuelle Technik-Konzepte. Das Portfolio reicht dabei von Projektions-, Beleuchtungs- und Beschallungspauschalen bis hin zu Bühnen- und Tribünenbau.
Die benachbarten Parkhäuser garantieren gute Parkmöglichkeiten und eine schnelle Erreichbarkeit der Halle mit dem PKW. Haltestellen für Bus und Bahn des öffentlichen Nahverkehrs liegen 350 m vom Halleneingang entfernt und sind für Tagungsgäste gut zu erreichen. Für Übernachtungsgäste steht das benachbarte Congress Hotel am Stadtpark zur Verfügung, welches durch einen Verbindungsgang direkt mit dem Hannover Congress Centrum verbunden und in fünf Minuten von der Eilenriedehalle aus zu erreichen ist.
Marktplatz Eilenriedehalle – Messen und Ausstellungen in der Eilenriedehalle
Veranstalter von Messen und Ausstellungen finden in der Eilenriedehalle ihren optimalen Veranstaltungsort. Die gesamte Fläche von 3.476 m² Hallenboden ist mit bis zu 500kg/m² belastbar. In Kombination mit einer Deckenhöhe von 8,80 m und zahlreichen Hängepunkten mit einer Belastbarkeit von 650 kg bis 1.000 kg eröffnen sich Veranstaltern von Messen und Ausstellungen unzählige Möglichkeiten des Messebaus.
Die hohe Bodenlast sowie große Rolltore zur Anlieferung ermöglichen die Einbringung großer Exponate wie Kraftfahrzeuge und vereinfachen die Messelogistik. Der Anlieferungsbereich im hinteren Bereich der Eilenriedehalle ist großzügig gestaltet und mit Rolltoren ausgestattet. Für kleinere Aussteller besteht die Möglichkeit, West- und Ostfoyer direkt anzufahren.
Vier eingebaute Kioske öffnen sich sowohl zum Veranstaltungsbereich als auch zum Foyer und sind als Messerestaurant oder Messekiosk für die Veranstaltung nutzbar. So können West- und Ost-Foyer der Eilenriedehalle aktiv eingebunden und in Teilbereichen als Garderobe oder Info-Counter genutzt werden. Ein direkt angeschlossener aber abgetrennter Bereich mit Büroräumen und Sanitäranlagen steht als Veranstalterbüro zur Verfügung und rundet das Profil der Eilenriedehalle als Messe- und Ausstellungshalle ab.
Eventlocation Eilenriedehalle – Events und gastronomische Veranstaltungen in der Eilenriedehalle
Eventveranstalter und Veranstalter von klassischen gastronomischen Veranstaltungen finden in unserer größten multifunktionalen Halle optimale Voraussetzungen für die Umsetzung Ihrer Veranstaltungsformate. Die große Veranstaltungsfläche von 3.476 m² lässt sich variabel nutzen und je nach Bedarf individuell bestuhlen oder unterteilen.
Als klassischer Bankettraum mit runden 10er-Tischen bestuhlt lassen sich bis zu 1.760 Gäste in der Halle platzieren. Die variable Nutzung und Abtrennung der 79 m x 43,5 m großen Veranstaltungsfläche ermöglicht auch die Umsetzung aufwendiger und ausgefallener Konzepte. Dabei findet eine Mitarbeiterparty mit Livemusik und aufwendigem Bühnenbau ebenso Platz in der Eilenriedehalle, wie ein zünftiges Oktoberfest mit Autoscooter, ein hipper Food-Truck-Markt mit einer Vielzahl von Ständen oder eine Preisverleihung mit aufwendigem Tribünenbau für Stadionatmosphäre. Die neutral gehaltene Eilenriedehalle lässt sich dabei mit einem überschaubaren Aufwand in eine szenige Eventlocation mit Ihren Unternehmensfarben verwandeln.
Die Hallenhöhe von 8,80 m in Verbindung mit diversen Hängepunkten ermöglicht eine Vielzahl von Aufbauvarianten. Rolltore im Anlieferungsbereich vereinfachen die Logistik. Durch die vorhandene Infrastruktur mit Strom- und Wasseranschlüssen sowie einer komfortablen Anlieferungs- und Aufbausituation lässt sich nahezu jedes individuelle Konzept in der Eilenriedehalle umsetzen. Der benachbarte Hallenteil B wird hierbei gerne als Back-Office oder Lager genutzt.


























